
Stud opening sizes for reveal windows ONLY.
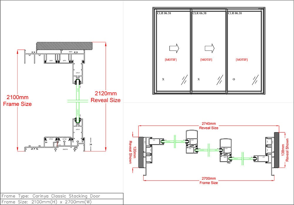
Height - 2140mm
Width - 2750mm
Weight - Single 121kg / Double 155kg
THIS ITEM CAN NOT BE SHIPPED OUTSIDE OF BALLINA - SUNSHINE COAST.
All Sliding Doors include a Doric Hardware. You can view details on this hardware here. View Premium Carey handle option here.
Don't have the options you want? Contact our custom design team here to get a quote.
This commercial background means that besides a modern designer look, the Carinya Classic Sliding Door is packed with a multitude of performance features, many of which are simply not available in competing products:
- Rather than unsightly exposed tracks found in most residential doors, Carinya has a complete range of threshold and jamb in-fills as well as end caps to conceal all cavities. This not only provides a superior quality, commercial grade finish but also minimises places for insects, dirt and grit to gather.
- An internally concealed weather flap also reduces air and water infiltration and minimises insect intrusion through the drain holes.
- There is also a range of attractive interlock options to meet a wide variety of wind load requirements up to the most demanding cyclonic conditions.
Energy Efficiency
The Carinya Collection of aluminium framed windows and doors has been specifically designed to be environmentally friendly, reflecting Carinya's commercial market heritage, where thermal and acoustic performance are often critical.
Of all building materials including glass, timber and masonry only one material is 100% recyclable - Aluminium.
Unlike many aluminium windows, Carinya has been designed for all major forms of eco-friendly glazing options without any alteration to the frame or any unsightly add-ons.
Carinya frames are designed for eco-friendly Low E glass, high thermal and high acoustic performance 10.5mm glazing. To maximise the energy efficiency of your glazing discuss your project with a specialist Carinya Dealer and/or your architect or designer.
Remember the three most important issues for achieving maximum energy efficiency in a home are:
- Orientation - always try and have living areas facing north with seasonal shading.
- Insulation.
- Window quality and performance.
Photo is inside looking out to show Hardware.