
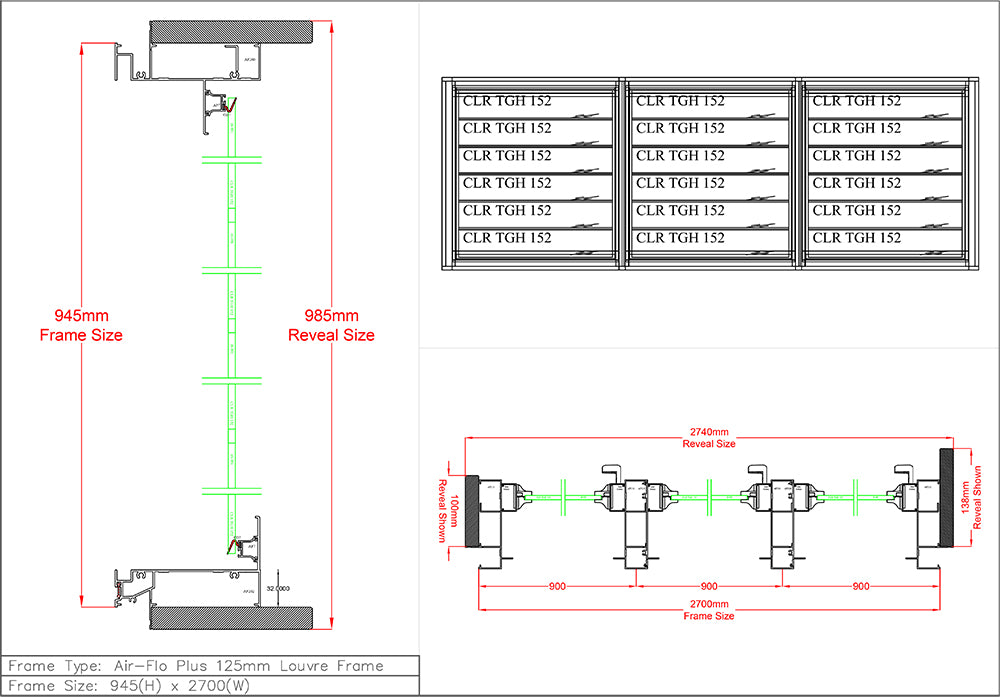
Stud opening sizes for reveal windows ONLY.
Height - 995mm
Width - 2750mm
Weight - 55kg
Don't have the options you want? Contact our custom design team here to get a quote.
At WDS we use the industry leading Breezeway louvre system and Aero Louvres . Breezway offers a new generation, high performance louvre window designed specifically for Australia’s weather and climate. View the benefits of Breezway louvres here. Aero Louvre Powered by Alspec™ are a versatile, stylish window choice that enhance the look and feel of any home while delivering environmental benefits and keeping occupants safe and protected.
Energy Efficiency
- Increased energy efficiency, health and productivity of building occupants.
- Reduced need for air conditioning to keep the room at a comfortable temperature, saving electricity and the running costs of a building.
- Low U-values required for energy efficiency compliance/excellence.
- Appropriate U-values and ventilation for all climate zones.
Photo is inside looking out to show Hardware.