 
  
        Stud opening sizes for reveal windows ONLY.
Height - 1250mm
Width - 650mm
Weight - Single 11.1kg / Double 19kg
Don't have the options you want? Contact our custom design team here to get a quote.
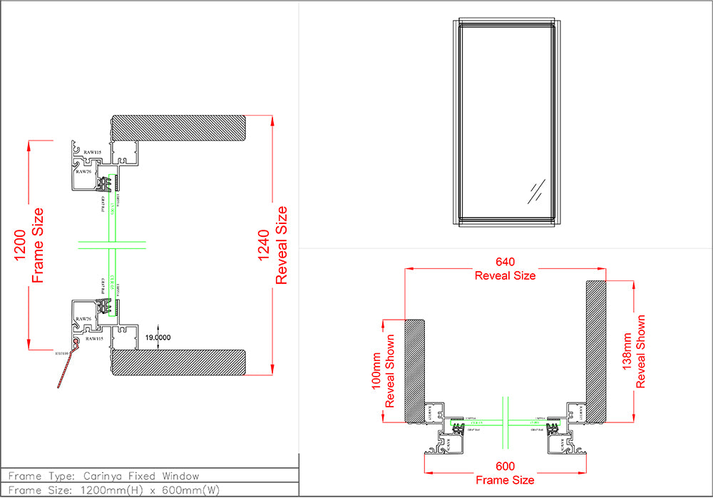
Sometimes all you need is to frame the perfect view! Fixed windows are an excellent window to compliment others within your home and can be made to any size and most shapes.
Energy Efficiency
The Carinya Collection of aluminium framed windows and doors has been specifically designed to be environmentally friendly, reflecting Carinya's commercial market heritage, where thermal and acoustic performance are often critical.
Of all building materials including glass, timber and masonry only one material is 100% recyclable - Aluminium.
Unlike many aluminium windows, Carinya has been designed for all major forms of eco-friendly glazing options without any alteration to the frame or any unsightly add-ons.
Carinya frames are designed for eco-friendly Low E glass, high thermal and high acoustic performance up to 10.5mm glazing. To maximise the energy efficiency of your glazing discuss your project with a specialist Carinya Dealer and/or your architect or designer.
Remember the three most important issues for achieving maximum energy efficiency in a home are:
- Orientation - always try and have living areas facing north with seasonal shading.
- Insulation.
- Window quality and performance.
Photo is inside looking out to show Hardware.
 
        
       
  
         
  
        