Skip to content
Lead times ( Delivery & Pick Up ) is 2-4 Weeks
Lead times ( Delivery & Pick Up ) is 2-4 Weeks

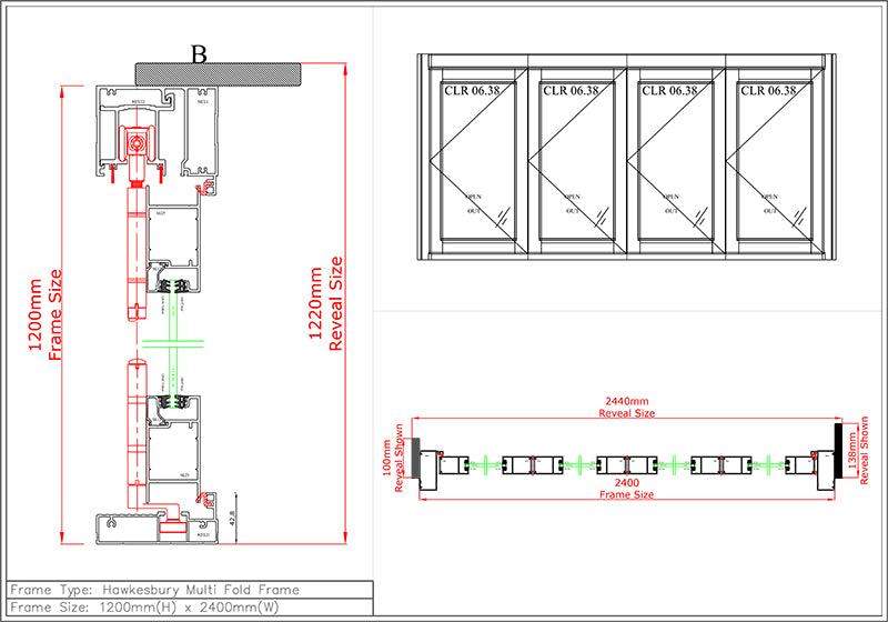
Bi-Fold Servery Window H1200 x W2400

by Alspec
$4,110.00

Stud opening sizes for reveal windows ONLY.

Height - 1230mm
Width - 2450mm
Weight - Single 63kg / Double 86kg

Designed with large floor to ceiling applications in mind, the Hawkesbury® Multi-Fold Door Range combine full sized commercial perimeter framing with specially designed commercial door stiles. A functional alternative to traditional door units in lighter commercial and residential applications the Hawkesbury® E2 and E3 Door Range removes the barriers to allow flow between indoor and outdoor living. Whether the doors are open in fine weather or securely fastened into place as sturdy impenetrable walls, the Alspec® Hawkesbury® Door is the only choice.

High Performance Hardware

Powered by exclusive hardware from Centor Architectural the Hawkesbury® Door features top-rolling operation for smooth, trouble-free operation whether configured for inward or outward stacking or with an odd or even number of door stiles. Tyred floor guides run effortlessly in channels neatly concealed beneath closed doors, while effective Weatherseal technology keeps wind, rain and cold air where it belongs. The stabilising centre hinge controls door stile deflection and bowing on tall doors, whilst the exclusive Surelock™ system allows for simple vertical height adjustment with a screwdriver.

Glass Options

Our Bi-fold servery windows are available in clear , obscure ( Acid Etched ) and low-e options. You can upgrade these options with double glazing.